СБУ 3.2-2 ВрII

Чертеж изделия:
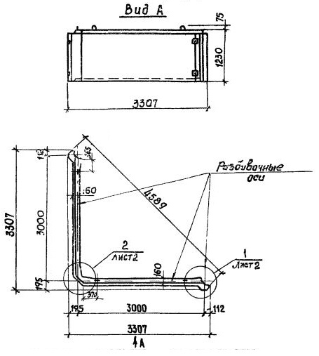
Характеристики изделия:
ПараметрЗначение
Длина3307 мм
Ширина3307 мм
Высота1230 мм
Масса3000 кг
Нормативный документСерия 3.702.1-4
Цена:
Рассчитать стоимость

СБУ 3.2-2 ВрII  Силосный блок угловой по Серии 3.702.1-4.